εικόνα ακινήτου
Πωλείται Διαμέρισμα τριάρι

Διαμέρισμα νέας κατασκευής για πώληση με πανοραμική θέα λίμνη Ανατολή Ιωάννινα

70μ2
/
€ 184.000

Περιγραφή

Διαμέρισμα νέας κατασκευής για πώληση με πανοραμική θέα λίμνη Ανατολή Ιωάννινα

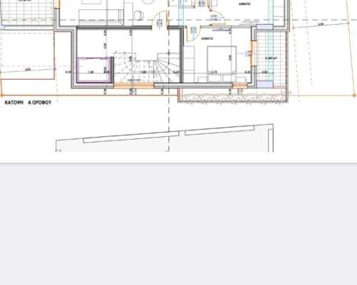
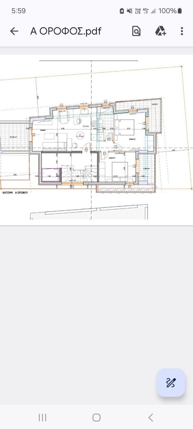
ΑΝΑΤΟΛΗ ΙΩΑΝΝΙΝΩΝ περιοχή Βρυσούλα, πωλείται νεόδμητο υπό κατασκευή πολυτελές διαμέρισμα 70,68τ.μ.,σε τετραώροφη υπό κατασκευή πολυκατοικία με πυλωτή, 1ου ορόφου, με απρόσκοπτη θέα στην λίμνη. Πρόκειται για μία σύγχρονη κατασκευή υψηλών προδιαγραφών με μοντέρνα αρχιτεκτονική και άνετους χώρους.Το διαμέρισμα διαθέτει 2 υπνοδωμάτια, σαλόνι-κουζίνα, ένα μπάνιο και βεράντες.
Επιπλέον χαρακτηριστικά ακινήτου :
Ενεργειακή Κλάση Α’ , Ιδιωτική θέση στάθμευσης , Αποθήκη, Αναμονή φυσικού αερίου, Μεγάλες βεράντες, Σύγχρονη κατασκευή & αρχιτεκτονικός σχεδιασμός
Εξαιρετική τοποθεσία με θέα στην λίμνη και μόλις 10 λεπτά οδικώς από το κέντρο της πόλης των Ιωαννίνων.
Η κατασκευή έχει ήδη ξεκινήσει και θα έχει ολοκληρωθεί σε ένα χρόνο.
Προτείνεται ως μόνιμη κατοικία, αλλά και ως επενδυτικό ακίνητο.
ΤΙΜΗ ΠΩΛΗΣΗΣ: 184.000 ΕΥΡΩ

Δείτε άλλες πωλήσεις στην κατηγορία Διαμέρισμα τριάρι

Χαρακτηριστικά

  • Κωδικός ακινήτου:
    ΑΝ-50
  • Είδος:
    Διαμέρισμα τριάρι
  • Εμβαδόν:
    70μ2
  • Τιμή:
    € 184.000
  • Περιοχή:
    Ιωάννινα, Δήμος Ιωαννίνων, Ανατολή
  • Δρόμος:
    Άσφαλτος
  • Ενεργειακή κλάση:
    Α+
  • Έτος κατασκευής:
    2026
  • Θέσεις στάθμευσης:
    ΝΑΙ
  • Μπαλκόνια:
    ΝΑΙ
  • Μπάνια:
    1
  • Όροφος:
    1
  • Υπνοδωμάτια:
    2

Λοιπά στοιχεία

Ανελκυστήρας
Αποθήκη
Αυτόνομη θέρμανση
Βαμμένο πρόσφατα
Βεράντα
Γωνιακό
Διαμπερές
Δορυφορική κεραία
Επενδυτικό ακίνητο
Εσωτερική σκάλα
Θέα
Κατάλληλο για εξοχικό
Κατάλληλο για επαγγελματική χρήση
Κήπος
Κουφώματα αλουμινίου
Κτισμένο με πυλό
Νεόδμητο
Οροφή με κεραμίδια
Οροφοδιαμέρισμα
Πάρκινγκ
Πάτωμα πλακάκι
Περιφραγμένο
Πιλοτή
Πολυτελής κατοικία
Πόρτα ασφαλείας
Πρόσβαση εύκολη
Πρόσοψη σε άσφαλτο
Ρεύμα
Σίτες
Συναγερμός
Υπό κατασκευή
Φυσικό αέριο
Φωτεινό

Φωτογραφίες

Χάρτης

Σας ενδιαφέρει αυτό το ακίνητο;     ή Κάντε την προσφορά σας επώνυμα στην τιμή που θέλετε!!!

Για περισσότερες πληροφορίες καλέστε τώρα στο 210 220 5676 ή στο 6944 870 180 ή στείλτε τα στοιχεία σας συμπληρώνοντας την παρακάτω φόρμα και θα επικοινωνήσουμε μαζί σας σύντομα.

Τα πεδία με αστερίσκο (*) είναι υποχρεωτικά για την υποβολή της φόρμας.